09 de noviembre de 2010.

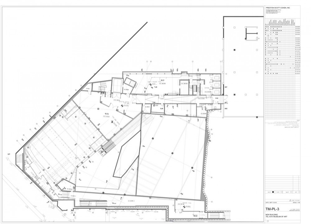
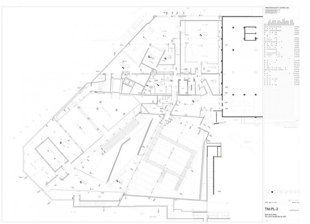
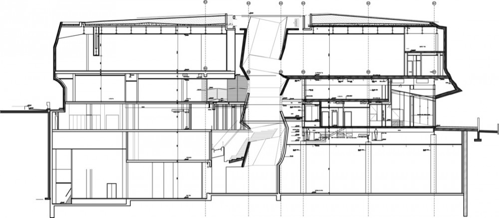
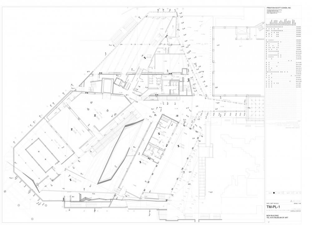
Located in the center of the city’s cultural complex, the program for the Tel Aviv Museum of Art Amir Building posed an extraordinary architectural challenge: to resolve the tension between the tight, idiosyncratic triangular site and the museum’s need for a series of large, neutral rectangular galleries. The solution: subtly twisting geometric surfaces (hyperbolic parabolas) that connect the disparate angles between the galleries and the context while refracting natural light into the deepest recesses of the half buried building.

Tel Aviv Museum of Art Amir Building was the First Prize Winner in the Herta and Paul Amir International Competition. The program includes Galleries of Israeli Art, Architecture and Design, Drawings and Prints, Temporary Exhibitions; Photography Study Center and Archives; Multidisciplinary Auditorium; Seminar and Conference Rooms; Art Library; Restaurant; Administrative Offices; Loading, Unpacking and Storage. Following the break are drawings and construction photographs of this recently completed building.

Architects: Preston Scott Cohen, Inc.
Location: Tel Aviv, Israel
Design: Preston Scott Cohen
Project Architect: Amit Nemlich
Project Assistants: Tobias Nolte, Steven Christensen, Guy Nahum, Gjergj Bakallbashi, Bohsung Kong
Competition Project Team: Scott Cohen, Cameron Wu, Andrew Saunders, Janny Baek
Competition Consultants: Ove Arup and Partners, Caroline Fitzgerald, Tom Dawes, Mark Walsh-Cooke
Cost Estimator: Hanscomb Faithful and Gould
Project Management: CPM Construction Management Ltd.
Structural Engineers: YSS Consulting Engineers Ltd.
HVAC: M. Doron-I. Shahar and Co., Consulting Eng. Ltd.
Lighting: Tillotson Design Associates
Accessibility: Michael Roitman
Acoustics: M.G. Acoustical Consultants Ltd.
General Contractor: Hezkelevitch Engineering
Models: Jonathan Lott, Isamu Kanda
Renderings: Chris Hoxie, Agito Design Studios
Client: Motti Omer, Director and Chief Curator
Project Area: 18, 500 sqm
Project Year: 2010
Photographs: Courtesy of Preston Scott Cohen

Courtesy of Preston Scott Cohen
The building represents an unusual synthesis of two opposing paradigms for the contemporary museum: the museum of neutral white boxes and the museum of architectural spectacle. Individual, rectangular galleries are organized around the “Lightfall”, an eighty-seven foot tall spiraling atrium. The building is composed according to multiple axes that deviate significantly from floor to floor. In essence, it is a series of independent plans and steel structural systems stacked one atop the other, connected by geometric episodes of vertical circulation.

Courtesy of Preston Scott Cohen
The new building refers to the original building in such a way that the two can be seen as having a family resemblance. At the same time, it relates to a larger tradition of the new that exists within Israeli architectural culture. The multiple vocabularies of Mendelsohn and Bauhaus Modernism in Tel Aviv are resynthesized in an architectural language that is internationalist and progressive in its cultural orientation.




























http://www.archdaily.com/87739/tel-aviv-museum-of-art-amir-building-preston-scott-cohen/#more-8773