30 de noviembre de 2010.

© Shuhe Photography / KSP Jürgen Engel Architekten
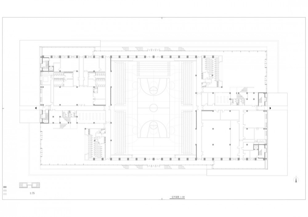
Located on the northeast side of Tianjin University campus this 120 meter long, 58 meter wide building is s venue for both the university and national sporting events. Tianjin Sports Arena seats approximately 5,000 spectators, and represents an important link between the campus and downtown.

Architects: KSP Jürgen Engel Architekten
Location: Tianjin, China
Developer: Tianjin University Department of Campus Construction and Planning
Partner: Academy of Architectural Design and City Planning Tianjin University
Client: Tianjin University
Project Area: 13,835 sqm
Project Year: 2010
Photographs: Shuhe Photography / KSP Jürgen Engel Architekten

© Shuhe Photography / KSP Jürgen Engel Architekten
The translucent gold-colored perforated sheath of steel panels are a distinctive element on the arena. Punching tools were made specially to produce the perforations, which, with their triangular shape take up the format of the panels. The form is a rhombic structure emphasizing the Arena’s dynamic, powerful shape. A special effect is created by mounting the steel panels four meters in front of the actual outer wall, further emphasizing the spatial depth and the lightness of the metallic façade.

© Shuhe Photography / KSP Jürgen Engel Architekten
Two spacious foyers open from the Sports Arena onto the campus. These two spaces cut through the outer skin of the building, and this break is further emphasized with large expanses of glass almost the entire height of the building some 24 meters. This created an entrance that is bright and flooded with light. Furthermore, the sloping roofs of the entrance halls create an entrance area that expands upwards.

© Shuhe Photography / KSP Jürgen Engel Architekten
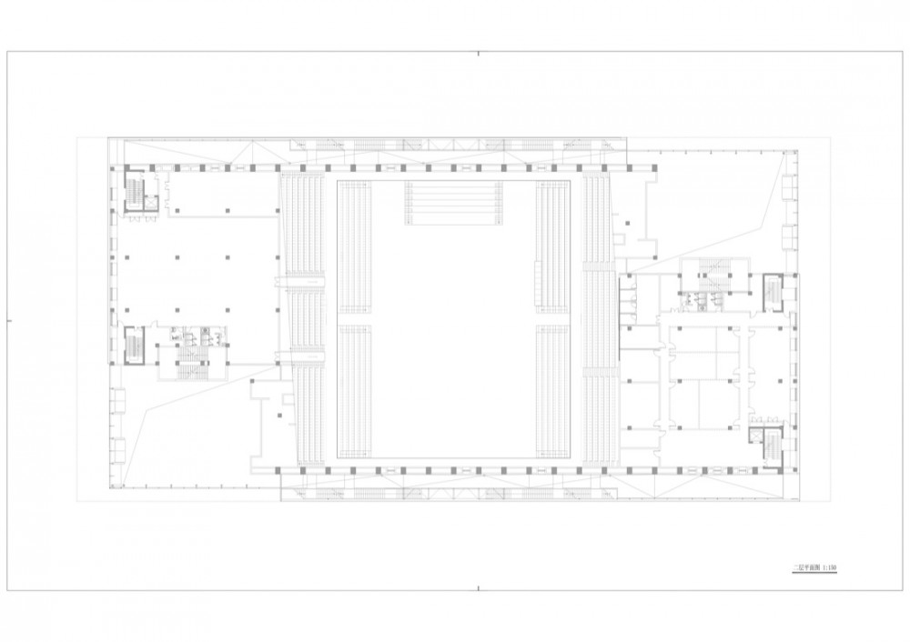
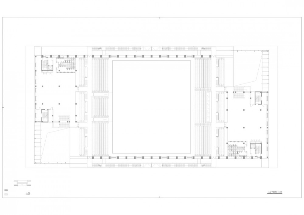
The walls of the entrance halls are bright orange and form an exciting contrast to the open exposed concrete stairs. These lead from the foyer directly up to the spectator stands on the inside of the arena. The rows of spectator seats, which, being orange and gray, correspond with the color of the foyer, flank a 24 x 44-meter basketball or handball court. For everyday university purposes the playing area can be divided into two smaller basketball courts or a maximum of 12 badminton courts. All the ancillary rooms such as the changing rooms are located in the levels beneath the stands.












http://www.archdaily.com/92097/tianjin-sports-arena-ksp-jurgen-engel-architekten/