Belgian firm Urbain Architectencollectief has refurbished a former brick fire station building and added an extra storey to house additional facilities for a cultural centre in the city of Kortrijk (+ slideshow).
The extension to the Cultural Center de Neerbeek forms part of a masterplan developed by Ghent studio Urbain Architectencollectief in 2009 to increase the town’s public amenities by introducing a new library, administration offices and conference rooms.
Following an assessment of the site, the architects determined that an extension to the existing building would result in an overbearing structure and have a detrimental affect on the adjacent public space.
Instead they collaborated with Carlos Debucquoy, the architect of the existing cultural centre, to modernise the building and proposed repurposing a nearby disused fire station to house the additional facilities.
“Through the reallocation of a nearby deserted fire station we have managed to divide the programme of the brief in a balanced way, and we were able to avoid the physical extension of the existing cultural centre,” said the architects.
“This way we could reduce the refurbishment of the centre to a basic but thorough update,” they added. “The new cultural centre did not result in a very big building obstructing the public domain, but in two buildings on a scale that fits the place, around a new square that accommodates activities linked to the centre itself.”
The fire station was identified as a suitable location for the new facilities because of its strong presence close to the existing centre and large interior spaces that could easily be modified for alternative uses.
To create the space required for the additional amenities, a second storey was added to the existing flat-roofed single-storey building. A similar type of brick and bond pattern was used to create visual continuity between the old and new structures.
A library is now housed in the fire station’s former garage, where the original rolling shutters have been replaced by large windows and glazed doors that allow natural light to fill the space.
Offices and a new foyer are accommodated in the remaining ground floor rooms. A concrete staircase that spirals around a pillar near the entrance provides access to the conference rooms on the upper floor.
The foyer looks out across a landscaped lawn that improves the public space connecting the fire station building with the existing cultural centre.
The renovation of the original cultural facility involved shifting the existing entrance and adding a new foyer with a slanted roof.
A glazed frontage enhances the connection between the public square outside and the multipurpose hall. The foyer also now extends into a cafeteria space that opens onto a new terrace.
Grey cement fibre panels added to the building’s exterior give it a scaly uniform appearance. This insulated skin combines with the new glazing and anodised aluminium frames to improve the facility’s energy efficiency.
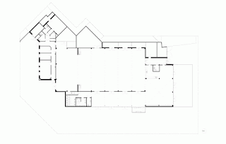
Site plan
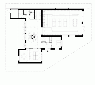
Ground floor
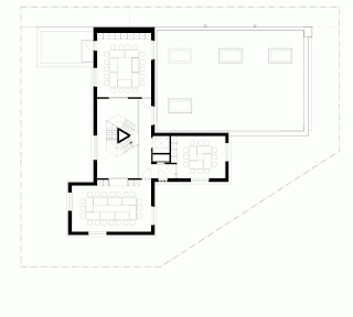
First floor
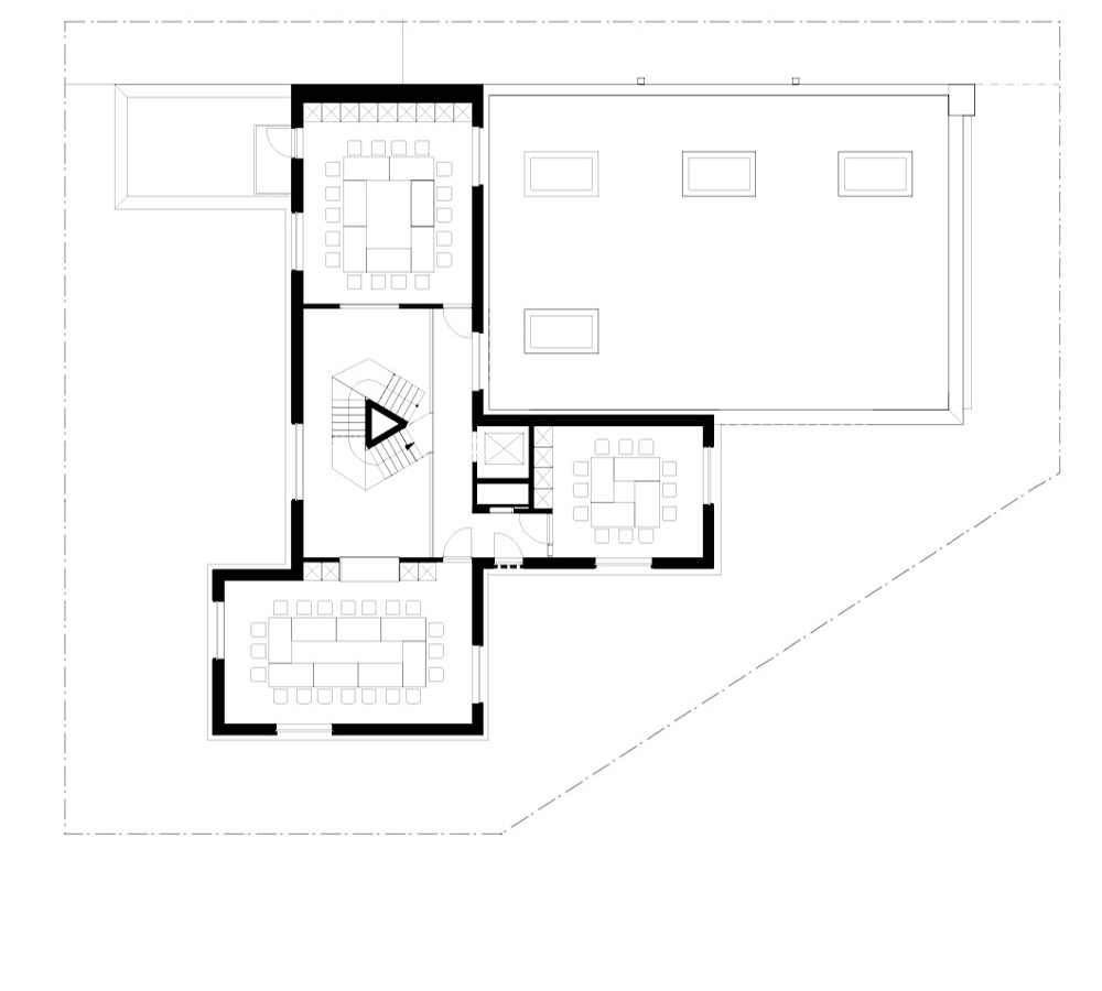
Cultural centre floor plan
















