20 de enero de 2011.

© Vlad Efimov, Oleg Dyachenko
Architects: Bureau Bernaskoni
Location: Dacha, Russia
Project team: Boris Bernaskoni?, Oleg Dyachenko?, Pavel Prishin
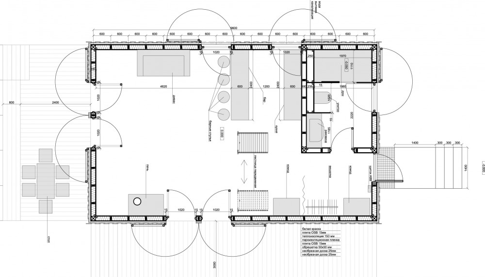
Project area: 90 sqm
Project year: 2009 – 2010
Photographs: Vlad Efimov, Oleg Dyachenko

© Vlad Efimov, Oleg Dyachenko
The VolgaDacha* house is located in a bucolic russian village on the upper reaches of Volga river. Seen from the windows is a 17-century orthodox church cathedral and glimpses of waterfront of Volga. Prior to construction the 3000 sq mt plot was thick-set by weeds namely the cow parsnip reaching 3 metres high.

A family with two kids wanted a quiet retreat from the everyday busy life in the suburbs of Moscow. The house where you spend most of the time inevitably gets cluttered so the idea for VolgaDacha was to have a clean and minimal space, almost to the point of austerity.

A house has a living room and an open kitchen on the first floor and separated master bedroom and kid’s sleeping places on the loft. The bathroom has a glass door leading to the deck with an outdoor shower. A vast terrace made of siberian larch and surrounding the house can be used to relax with a good book or an IPad3G. A floor to ceiling glass sliding doors are closed by wooden shutters when owners are not at the VolgaDacha. Due to good insulation the house can be kept warm by heated floors and a small wood stove in the winter. The concrete floors are keeping it cool during the hot summer months.


The courtyard formed by a house and a shed was leveled by sand, than covered with geotextiles and thick layer of gravel to provide for a maintenance free garden.


http://www.archdaily.com/104506/volgadacha-house-buro-bernaskoni/#more-104506