 |
| © Jan Bitter |
Six protruding glass-walled cubes define and compose the new offices realised by Wiel Arets Architects, creating a new urban typology in the center of the medieval city of Ravensburg.
WAA, Wiel Arets Architects recently completed a new office building for Schwäbisch Media (Swabian Media), a publishing company active in many facets of traditional and new media.
Six protruding glass-walled cubes define and compose the project, with their proportions and dimensions based on the surrounding traditional German fachwerk villas in the city of Ravensburg.
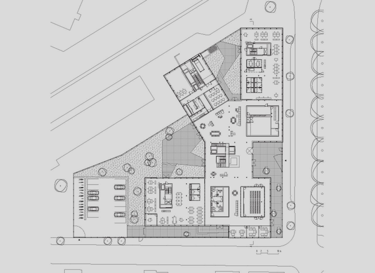
Six working areas have been stacked on top of a transparent ground floor, through which access is afforded to each, creating a new urban typology in the center of this medieval city. As the company’s activities were previously scattered throughout the Upper Swabia region, this building brings all 350 employees under one roof.
Wrapping the project’s perimeter is a silkscreen fritted glass fence varying in height from 1-4.5 meters. This semi-transparent membrane provides additional security and features an oversized centrally located entrance in the form of an 8-meter wide gate, opening during the day and closing at night.
Lending a singular identity to the clustered volumes, this fence also allows the six individual working areas to be individually distinguished. Therefore, this new office can be perceived as both several individual buildings, sharing a common enclosing skin, and one continuous urban intervention that fluidly interweaves interior and exterior.
The working areas vary in floor height, and are connected by a series of outdoor terraces, which serve as external shortcuts, but also as communication and resting areas, between the many media departments. These exterior terraces activate the building, encouraging informal communication among the building’s employees, balancing with the generously open interior office spaces.
The hybrid nature of the office’s column free interior spaces, and the raised floors throughout for IT and data cables, allows the building to remain flexible and adaptable to future uses. The building’s five staircases, parking garage, and most ceilings have been created using exposed concrete, supplemented with additional aluminum acoustic panels.
Geothermal energy heats the interior, and a computer-controlled sunshade drapes the exteriors of the six glass-cubed working areas. Depending on the time of day, year, and exposure of the sun, an algorithm further determines whichportions of the shading system should be lowered. Office employees can manually override these sunshades, expanding upon the building’s domestic character. The silkscreened print on the perimeter glass fence and ground floor, which recalls the image of curtails blowing in the wind, provides further protection from solar gain, while ensuring interior privacy for employees at street level.
Schwäbisch Media
Ravensburg, Germany
Architects: Wiel Arets Architects
Project Team: Wiel Arets, Bettina Kraus, Carsten Hilgendorf, Uta Böcker, Tobias Gehrke, Ramón Alvarez-Roa, Ole Hallier, Sjoerd Wilbers
Collaborators: Janosch Welzien, Jasper Stevens, Martin Tessarz, Tobias Bam- berg, Steffen Winkler, Carlatta Giacomin
Consultants: ABT, Eicher + Pauli, Winter·lngenieure
Client: Schwäbischer Verlag GmbH & Co. KG
Type: Office
Total Area: 13.800 sqm
Date of Design Competition 1st Prize: 2008 – 2009
Completion: June 2013
 |
| © Jan Bitter |
 |
| © Jan Bitter |
 |
| © Jan Bitter |
 |
| © Jan Bitter |
 |
| © Jan Bitter |
 |
| Wiel Arets Architects, Schwäbisch Media, Ground Floor Plan |
 |
| Wiel Arets Architects, Schwäbisch Media, Second Floor Plan |
 |
| Wiel Arets Architects, Schwäbisch Media, Fourth Floor Plan |
 |
| Wiel Arets Architects, Schwäbisch Media, Fifth Floor Plan |
 |
| Wiel Arets Architects, Schwäbisch Media,Section and Elevation |
 |
| Wiel Arets Architects, Schwäbisch Media, Model |
 |
| Wiel Arets Architects, Schwäbisch Media, Rendering |