31 de octubre de 2010.

© Courtesy of P-A-T-T-E-R-N-S
Architects: P-A-T-T-E-R-N-S
Location: Chengdu, Sichuan Province, China
Client: Chengdu Qingyang Suburb Construction & Development Co.
Firm Principal/Partner in Charge: Marcelo Spina and Georgina Huljich
Project Manager: Courtenay Bauer
Project Designers: Rick Michod and J. Travis Russet
Project Assistant: Jeeyea Kim
Project Year: 2010
Photographs: Courtesy of P-A-T-T-E-R-N-S

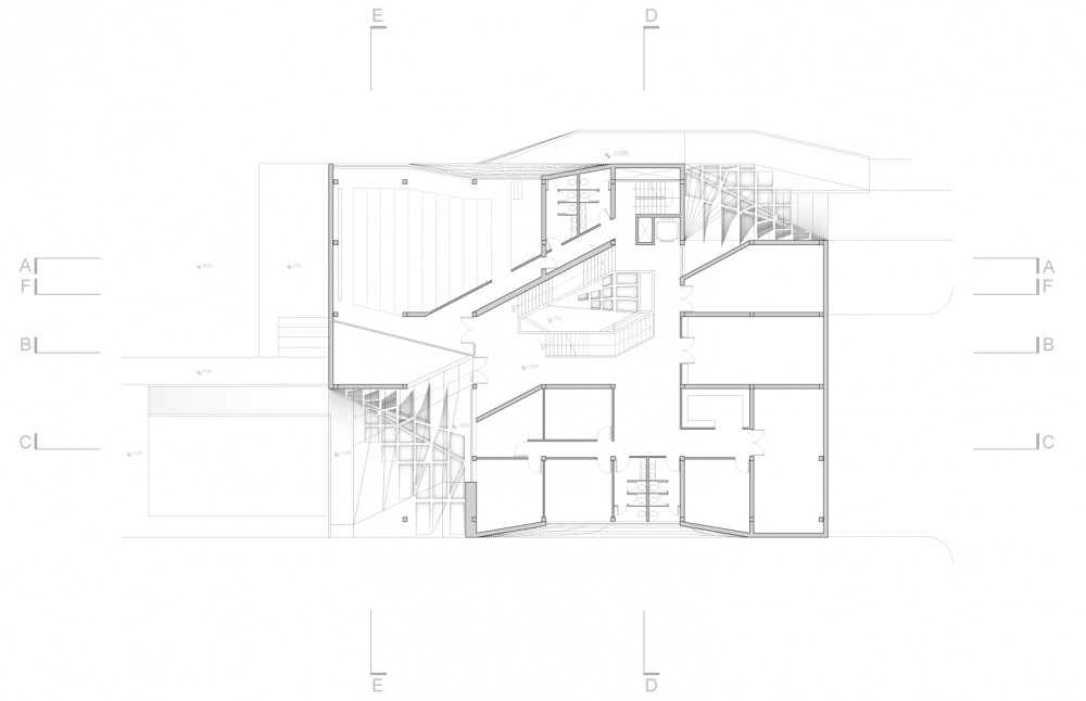
Concept: Fluid Core Yard
A Connecting exterior core with a triple height Light-well continuously structuring the building.

The central core is the structuring concept of the project, the space per excellence of social interaction and the most beautiful space inside the building. The dramatic effects of light coming from the roof will allow visitors to move up and explore.

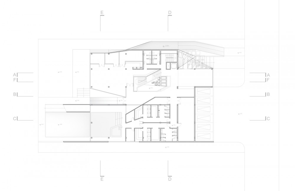
Program Organization
The building is organized intro three stacking layers [3 levels] coinciding with the 3 main programmatic zones of the program: Working, Living and Leisure. Logistics zone is located in several levels [see plans for more detailed information]

These 3 layers are united by a vertical connecting core, organized around a light-well that goes from ground level all the way to the roof. Because of its performance and the rich spatial quality, this is the most important element of the project. We envision this area to become a sort of interior courtyard, socially very active, with people from different levels interact.

The first level [ground] contains all of the leisure area of the building, in relation to the private garden and terraces on the back facing the golf course. The circulation spine connects from the lobby top the garden through the building. The second level contains the working area [office] including meeting rooms, projection rooms and a large area for lectures, large meetings, receptions and conferences that can be subdivided into smaller rooms.

The third level houses the living area of the building. Main bedrooms and guest bedrooms are organized around a private terrace overlooking the site. A large reception hall with space for dinning and lounge and a wine bar are organized around a more public terrace facing the golf course.

The logistics area including central kitchen, storage zone, electrical and mechanical rooms are located in the basement. The Kitchen has an independent access and ventilation to the south.
The main core of the building, contain the main stair around a triple height space, a main elevator with a service [exiting] stair and restrooms for every level.

Atmospherics / Exterior and Interior
The building is conceived as a monolithic concrete form articulated with varying scales of fenestration. Large panels of glass stand in stark contrast to the weight of the overall concrete mass. Conversely, the small scale perforations add weight to the mass while opening the form to light. These perforations approach a fused relationship between structure, mass and light. That relationship is thus communicated to the building’s inhabitants at the scale of the eye and hand. The overall form of the project is very important for us -it needs to communicate a strong building identity for the company it will house as well as for the inhabitants that will occupy it.

Back Views / Exterior
In the back, the second level slopes down towards the pool, allowing for a covered outdoor seating area overlooking the adjacent pool and the golf course behind. The third level also cantilevers over this area over producing a strong sensation when seen from the pool or the golf course.









http://www.archdaily.com/85194/zhixin-hybrid-office-building-p-a-t-t-e-r-n-s/#more-85194
